Zentral gelegene Präsentation- oder Lagerfläche in Bad Vilbel
Informationen zur Immobilie:
Ort
61118 Bad Vilbel
Objektart
Gewerbeobjekt
Größe
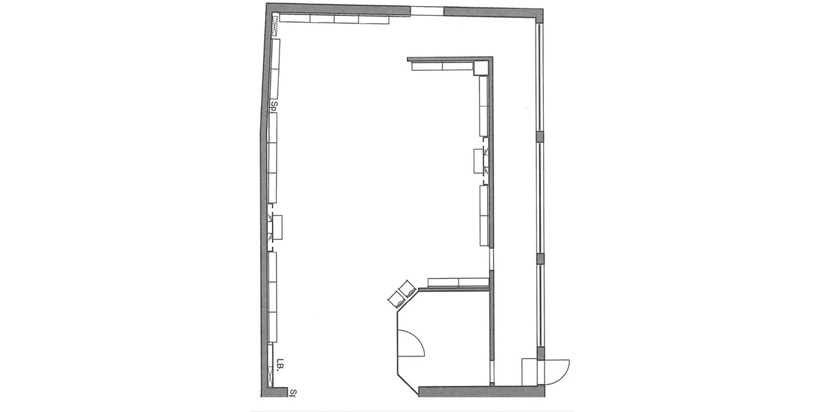
ca. 115,00 m²
900 €
Beschreibung:
Mehr zum Angebot Zentral gelegene Präsentation- oder Lagerfläche in Bad Vilbel:
Die angebotene Präsentations- oder Lagerfläche befindet sich in einem Flachbau direkt an
der Einkaufsstraße im Herzen von Bad Vilbel.
Die Fläche ist offen gestaltet und kann flexibel eingerichtet werden. Ein Waschbecken ist
vorhanden.
Ausstattung
•... mehr erfahren
Die angebotene Präsentations- oder Lagerfläche befindet sich in einem Flachbau direkt an
der Einkaufsstraße im Herzen von Bad Vilbel.
Die Fläche ist offen gestaltet und kann flexibel eingerichtet werden. Ein Waschbecken ist
vorhanden.
Ausstattung
•... mehr erfahren
weitere Gewerbeobjekte